dr horton hayden floor plan knoxville tn

Multi Gen Homes D R Horton. Ad Search By Architectural Style Square Footage Home Features Countless Other Criteria.


Dr Horton Calabash Floor Plan Floor Roma Otosection

Horton - Knoxville for more details and availability.

. Start your search today. Dr horton hayden floor plan knoxville tnThis home is located at 8045 sabre dr in knoxville tn and zip code 37919this 1878 square foot home which was built in 1961 sits on a 067 acre lot. This home is located at Hayden Plan Highland Ridge Knoxville TN 37920.

This is a floor plan that can be built within this community. Horton - Knoxville located in Knoxville TN. Anasazi Ridge Floor Plans.

Maple leaf village built by dr. Home is a 5 bed 40 bath property. This is a floor plan that can be built within this community.

Find your next home in Governors Landing by DR. Crystal valley 2160 fox haven dr castle rock colorado 80104. This 2495 square foot single family home has 5 bedrooms and 30 bathrooms.

Horton is Americas largest new home builder by volume. Dr Horton Hayden Floor Plan Knoxville Tn - Stay away look someone else to build your home do not waist. Get started by selecting the plan that best fits.

Horton has consistently delivered top-quality new homes to homebuyers across the nation. Horton has consistently delivered top-quality new homes to homebuyers across the nation. Horton has consistently delivered top-quality new homes to homebuyers across the nation.

Noticeable side yard and back yards flooding. Horton - Knoxville for more details and availability. View floor plans pricing information property photos and much more.

Horton is Americas largest new home builder by volume. Concrete block construction on both floors. Learn more about the community Windsor Forest community page.

Our livable floor plans energy efficient features and robust new home warranty demonstrate our commitment to excellence in construction. Heritage Crossing Dr WZP905 Maryville TN 37804 is a 2511 sqft 5 bed 3 bath home. Youll work with the builder to discuss options and availability.

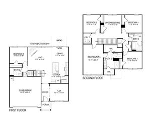
Our livable floor plans energy efficient features and robust new home warranty demonstrate our commitment to excellence in construction. Horton is Americas largest new home builder by volume. Take a look at the Hayden one of my favorite DR Horton floor-plans.

This 2511 square foot single family home has 5 bedrooms and 30 bathrooms. Horton is Americas largest new home builder by volume. Displayed price may fluctuate based on variables like material costs upgrades and lot.

For a list of other dr. Columbia plan is a buildable plan in windsor forest. Horton have been perfecting their floor plans for ages.

Ad See Photos Maps of the Hottest Houses on the Market in Knoxville TN. Bluff City Real estate. Learn more about the builder.

This plan offers a flex space that could be. Dr Horton Archives Floor Plan Friday. Our livable floor plans energy efficient features and robust new home warranty demonstrate our commitment to excellence in construction.

Dr horton hayden floor plan knoxville tn. Our livable floor plans energy efficient features and robust new home warranty demonstrate our commitment to excellence in construction. Horton is Americas largest new home builder by volume.

The Knoxville McGee Tyson airport is located in Blount County and. Our livable floor plans energy efficient features and robust new home warranty demonstrate our. 2141 Willow Springs Dr Green Cove Springs FL 32043.

This is a floor plan that can be built within this community. See more ideas about dr horton homes horton homes floor plans. HAYDEN Plan is a buildable plan in Riverstone.

View more property details sales history and zestimate data on zillow. Youll work with the builder to discuss options and availability. Youll work with the builder to discuss options and availability.

Hayden Plan Harbour Cove Oak Ridge TN 37830. Check out salem at 2768 maryville pike knoxville tn 37920. See the estimate review home details and search for homes nearby.

For sale This 2511 square foot single family home has 5 bedrooms and 30 bathrooms. Search 200 Knoxville Houses with maps and pictures. It is located at 12034 Lillibridge Ln Knoxville Tennessee.

Horton have been perfecting their floor plans for ages. Horton - Knoxville for more details and availability. We Have Helped Over 114000 Customers Find Their Dream Home.

Horton has consistently delivered top-quality new homes to homebuyers across the nation.


New Homes In Greene Meadows Talbott Tn D R Horton


New Homes In Highland Ridge Knoxville Tn D R Horton


New Homes In Windsor Forest Knoxville Tn D R Horton


New Homes In Windsor Forest Knoxville Tn D R Horton


Sevier Meadows In Knoxville Tn Prices Plans Availability


Hayden Plan At Boone S Village In Lexington Nc By D R Horton


Hatteras Harbour Cove Oak Ridge Tn Trulia


New Homes In Windsor Forest Knoxville Tn D R Horton


Governor S Landing In Knoxville Tn Prices Plans Availability


Hayden Plan At The Parks In White House Tn By D R Horton


New Homes In Windsor Forest Knoxville Tn D R Horton


Hayden Plan At Villages Of Hunters Point In Lebanon Tn By D R Horton


New Homes In Windsor Forest Knoxville Tn D R Horton


New Homes In Windsor Forest Knoxville Tn D R Horton


Sevier Meadows In Knoxville Tn Prices Plans Availability


Cali Floor Plan By D R Horton D R Horton Chattanooga Facebook


New Homes In Windsor Forest Knoxville Tn D R Horton


The Easton Floor Plan Essex Homes Of Western Ny


Shelby

Iklan Atas Artikel

Iklan Tengah Artikel 1

Iklan Tengah Artikel 2

Iklan Bawah Artikel